Sie sind hier:

Neubau des Kaisen-CampusHuckelriede

Auf einen Blick

Neubau eines Campus
47 Millionen Euro
6.916 m²
Anpassungen Bestandsgebäude

Die Schule
Der Kaisen-Campus entsteht in der Neustadt. Die zum Schuljahr 2018/19 neu gegründete Helene-Kaisen-Grundchule und die Wilhelm-Kaisen-Oberschule werden zu einem altersübergreifenden Bildungsstandort zusammengeführt.
Kaisen Campus

Fortschritt

Bilder

Die Baumaßnahme

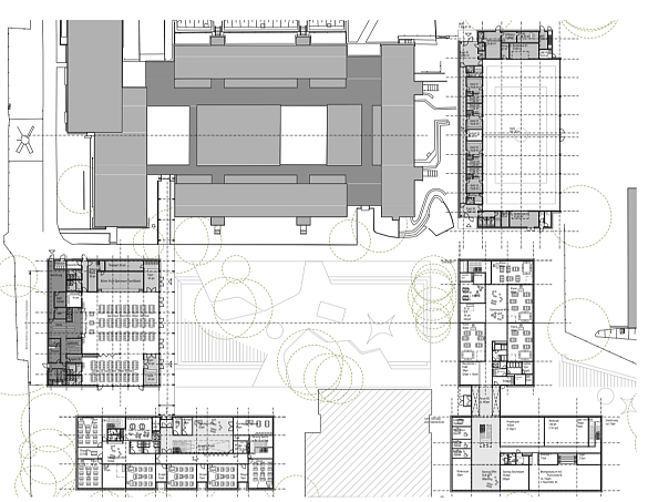
Von der Grundschule bis zum Abitur - der Kaisen Campus wird ein altersübergreifender und ganztägiger Lern-Lebens- und Arbeitsort für über 1000 Menschen. Neben einer neuen Grundschule für circa 290 Kinder entsteht ein Gemeinschaftshaus mit Mensa und Kochküche (ausgelegt auf circa 800 Essen/Tag) sowie eine Zweifeldsporthalle.
Die freie Fläche zwischen den vier Neubauten und dem Bestand bildet den gemeinsamen Campus mit Aufenthalts- und Sportangeboten, die auch am Nachmittag außerhalb der Schulzeiten genutzt werden können und sollen. Sie ist das Herzstück als zentrale und belebte Campusfläche. Durch vier Erweiterungsbauten entstehen neue Möglichkeiten der Nutzung und der Aufnahmekapazitäten. Die Schülerinnen und Schüler der Grundschule erhalten zudem eine zusätzliche, "geschützte" Außenfläche.

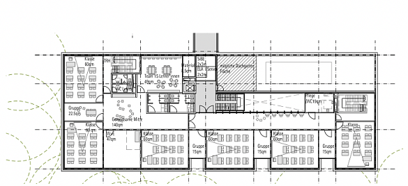
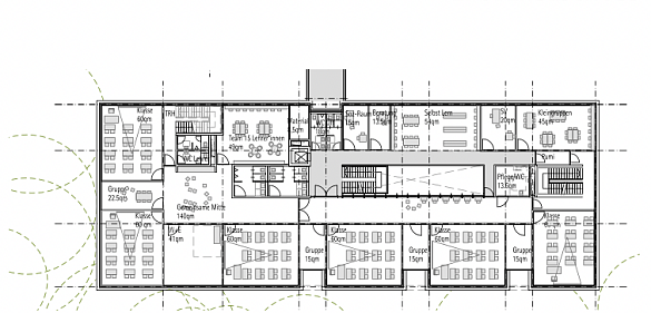
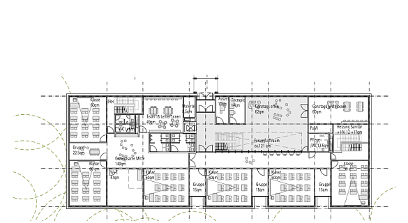
Bestandteil der Planung ist der Neubau der Helene-Kaisen-Schule als dreizügige Grundschule im gebundenen Ganztag sowie der Ausbau der Wilhelm-Kaisen-Oberschule von der Vierzügigkeit in die Sechszügigkeit. Die Wilhelm-Kaisen-Oberschule ist bereits teilgebundene Ganztagsschule. Beide Schulen sollen zudem für die Beschulung von Schüler*innen mit Förderbedarf im Bereich Wahrnehmung und Entwicklung ausgestattet werden. Ein weiterer zentraler Erweiterungsbau bildet die neue Mensa, die zukünftig auch als Veranstaltungsort für den gesamten Stadtteil dient.

Die vier Neubauten mit einer Brutto-Geschossfläche von insgesamt 10.279 Quadratmetern werden nach und nach fertig gestellt und in die Nutzung gegeben. Ende 2025 / Anfang 2026 sollen dann die Oberschulerweiterung, die Grundschule und die Außenanlagen fertiggestellt sein. Die Gesamtinvestitionskosten inklusive Bauzwischenfinanzierung belaufen sich auf circa 50 Millionen Euro brutto.
Der Generalübernehmer Züblin übernimmt fortan das Projekt, im Mai 2023 sollen die Bauarbeiten beginnen.